Adblocker active!

You are running an adblocker extension in your browser. If you wish to continue to this website you should disable it for this website and click Continue.

Balen Sinterveld 14 - 2490



Beschrijving


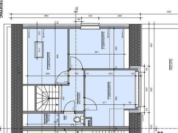
Nieuwbouw duplex appartementZeer ruim nieuwbouw duplex appartement 142m²) gelegen vlakbij het centrum. Het appartement heeft een eigen ingang en zal worden afgewerkt met de beste materialen, de koper heeft hierover nog inspraak. Indeling: inkom, gastentoilet, berging, ruime badkamer met douche en ligbad, woonkamer met aansluitend terras, open keuken, tweede berging en bureau. Boven: overloop, 3 slaapkamers en toilet. De carport is inbegrepen in de prijs. Via het grote raam van de woonkamer is er direct contact met het mooie terras. Rustig gelegen appartement met veel lichtinval. Zeer goed EPC 128 kWh/m² nr.1003-G-2009_98/EP12909/D845/D01/SD006



Prijs en beschikbaarheid


Een vermelding op deze site betekent niet dat deze woning nu te koop is.


  Kenmerken
  © Huistekoopin.be
Soort huis:Nieuwbouw duplex app Gebouwd in: 2012
Aantalgevels: 2 Gevelbreedte:
Woonoppervlakte:142 Perceeloppervlakte:
WC: 1 Aantal badkamers:
Garage: 1 Zolder:
Terras: Aantalwoonlagen:
Tuin: Locatietuin:
Keuken:Eetkamer:
Living:

Meer informatie over dit referentieobject, buurt en andere huizen



Provincie Antwerpen | Oost-Vlaanderen | Provincie Brussel | Alle koophuizen in Nederland