Boechout Gillegom 1 - 2530
Beschrijving
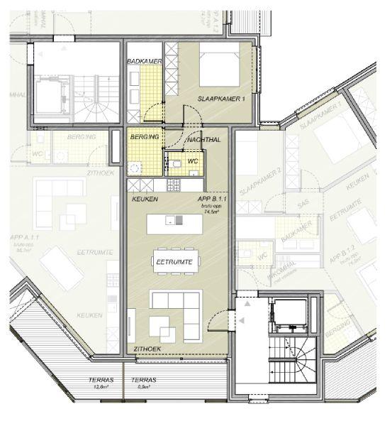
Nieuwbouw appartementModerne Nieuwbouw Dit modern nieuwbouw-project is gelegen op de hoek van de Gillegomstraat en de Provinciesteenweg. Alle appartementen hebben een terras of tuin. Verder kan er een garage en kelder aan het appartement worden toegevoegd. Specifiek voor dit project is er de mogelijkheid voor eigen inbreng i.v.m. indeling en afwerking van het interieur. Zo kan ieder appartement modern, klassiek of hedendaags worden ingericht. In samenspraak met onze interieurarchitecten kan u zo een interieur op maat bekomen dat volledig voldoet aan al uw eisen en wensen. Voor meer inlichtingen of een persoonlijke prijsofferte kan u steeds terecht op ons kantoor of telefonisch 0477/777.956
Prijs en beschikbaarheid
Een vermelding op deze site betekent niet dat deze woning nu te koop is.