Adblocker active!

You are running an adblocker extension in your browser. If you wish to continue to this website you should disable it for this website and click Continue.

La Bouverie Sur demande 0 - 7080



Beschrijving


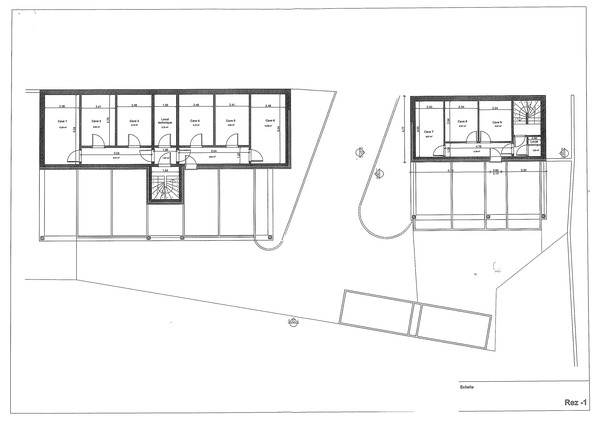
Het spijt ons, maar wij hebben geen Nederlandstalige vertaling gekregen Superbe opportunité d’investissement:projet de 9 appartements à 9km de Mons. Ns vs présentons un terrain de 6 a dans une rue très calme dont la voirie sera entièrement refaite d’ici peu, ds la commune de La Bouverie. Ce terrain bénéficie d’un permis d’urbanisme en règle en vue de la construction de 2 immeubles à appart’. En tt, 9 logements sont à créer, av leurs caves et leurs parkings. La façade du terrain étant à front de rue mais descendant ensuite sur toute sa profondeur permet d’éviter de gds coûts d’excavation et d’évacuation de terres. Le propriétaire a effectué ttes les démarches jusqu’à présent permis d’urbanisme, étude de sols, étude de stabilité,…) mais ne désire finalement pas entreprendre la construction pour raison médicale. Meer info...Bref : on n’y attend plus que le premier coup de pelleteuse pour démarrer ! Les appartements ont une superficie nette habitable) de 66m² + terrasse), 72m² et 62m² ; l’immeuble de 3 appartements ayant des dimensions extérieures de 9,7m sur 9m, celui de 6 appartements mesurant 18m sur 11m. Il n’y a pas d’ascenseur de prévu, ce qui vous évite un grand coût de construction, mais aussi d’entretien. SI vous désirez louer ces appartements : la location devrait varier a priori de 600 à 750€ selon l’habitation soit au minimum 6.000€ par mois, 72.000€ par an). En prix de vente, il faut compter entre 120.000 et 150.000€ suivant l’appartement. Plans, rapports d’étude de sol, adresse exacte,… disponibles à l’agence ou par e-mail. [Sluiten]



Prijs en beschikbaarheid


Een vermelding op deze site betekent niet dat deze woning nu te koop is.


  Kenmerken
  © Huistekoopin.be
Soort huis:Appartementsgeb. Gebouwd in:
Aantalgevels: 2 Gevelbreedte:
Woonoppervlakte: Perceeloppervlakte:598
WC: 1 Aantal badkamers:
Garage: Zolder:
Terras: Aantalwoonlagen:
Tuin: Locatietuin:
Keuken:Eetkamer:
Living:

Meer informatie over dit referentieobject, buurt en andere huizen



Provincie Antwerpen | Oost-Vlaanderen | Provincie Brussel | Alle koophuizen in Nederland