Le Roeulx rue des Ecoles 59 - 7070
Beschrijving
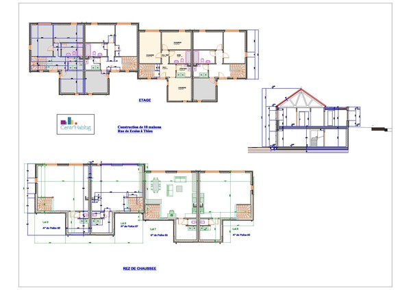
Het spijt ons, maar wij hebben geen Nederlandstalige vertaling gekregen 10 maisons neuves à vendre, gros oeuvres fermé uniquement, à partir de 136.000€ TVA Incluse! : • chape dans tous les locaux pas de carrelage) • escalier en béton brut • chauffage central gaz • électricité • plafonnage • pas de menuiseries intérieures • pas d’équipement sanitaire • pas de mobilier de cuisine. prix variable en fonction de la surface disponible: n°59/2A34ca-136.000€, n°61-3A29ca:144.000 €, n°63-3A33ca:145.000 €, n°65-2A42ca: 137.000 €, n°67-2A40ca:137.000 €, n°69-3A46ca:146.000 €, n°71-3A53ca:146.000 €, n°73-2A55ca:138.000 €, n°75-2A60ca: 139.000 €, n°77-3A77ca:149.000 €. Plus d'infos contacter Centhabitat au 064/43.18.86 de 8h30 à 16h00 14h30 le vendredi).
Meer info...Pour pouvoir acquérir ces logements, il ne faut pas être propriétaire d’un autre bien, et les revenus de votre ménage ne peuvent dépasser les limites prévues dans les règlements des prêts hypothécaires de la Société Wallonne du Crédit Social SWCS) et/ou du Fonds du Logement des Familles nombreuses de Wallonie. Vous pouvez utilement consulter ces organismes pour obtenir toutes les informations nécessaires. A titre indicatif, la SWCS mentionne actuellement sur son site internet que : « Les revenus globalement imposables 2009 du ménage ne pourront pas dépasser 47.500 € ces revenus se trouvent sur le dernier avertissement extrait de rôle que l'administration des contributions envoie chaque année) ».
[Sluiten]
Prijs en beschikbaarheid
Een vermelding op deze site betekent niet dat deze woning nu te koop is.