Grivegnée Avenue de la Grande Rotisse 0 - 4030
Beschrijving
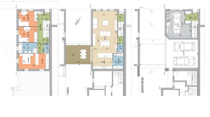
Het spijt ons, maar wij hebben geen Nederlandstalige vertaling gekregen NOUVEAU PRIX ! REMISE DE 20.000€ jusqu'au 30/06/2014 ! A grivegnée, à proximité des commerces et galeries commerçantes Belle-Ile, Médiacité), des écoles et des accès autoroutiers E25, E40), nous vous proposons une belle maison neuve, de standing, 4 chambres, un garage. Elle se compose, au rez, de : hall, salon, salle à manger, cuisine, buanderie, WC. Au premier étage : 3 chambres, salle de bain, WC séparé, hall de nuit, dressing. Au deuxième étage : 1 chambre. Une terrasse de 20 m². Maison rapidement disponible. Pour plus de renseignements, contactez-nous : www.etiennepiron.be ou 087 68 60 20
Prijs en beschikbaarheid
Een vermelding op deze site betekent niet dat deze woning nu te koop is.