Hoeilaart Sloesveldstraat 15 - 1560
Beschrijving
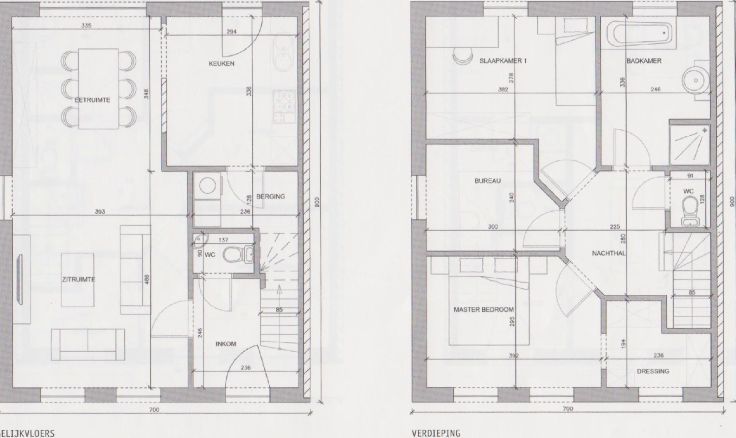
Luxe nieuwbouw laagenergiewoningDit luxe nieuwbouwproject wordt gebouwd in een rustige omgeving met goede verbinding naar de E 411 Namen - Brussel. Het betreft een laagenergiewoning volgens het type houtskelet met façadesteen rondom. Ze wordt met een luxe afwerking sleutel op de deur afgeleverd. U heeft vanaf het begin volledige inspraak in de plannen en keuze van de materialen bij onze leveranciers in Limburg en de Antwerpse Kempen. Tevens zijn er zonnepanelen op het dak voorzien ter waarde van 7.500 € excl btw. Deze zullen de kost van uw elektriciteitsrekening gevoelig doen dalen. Graag brengen we met u een bezoek aan een woning die pas is gebouwd om een idee te krijgen over de afwerking. U ziet alles op voorhand en wij bieden u een totaalpakket aan ZONDER extra kosten.
Meer info...Een architect zal samen met de aannemer de werf opvolgen. Van verkoop tot oplevering van de woning krijgt u steeds te doen met deze aannemer. Wenst u graag een bezoek bij u thuis, bel 0499 775557. Alle kosten inbegrepen notaris, registratie grond, 21 % btw woning, architect met toezicht, EPB verslaggeving, veiligheidscoördinator) komt deze luxe woning op 444.775 €. Het betreft de woning op de hoofdfoto zonder de garage.
[Sluiten]
Prijs en beschikbaarheid
Een vermelding op deze site betekent niet dat deze woning nu te koop is.