Adblocker active!

You are running an adblocker extension in your browser. If you wish to continue to this website you should disable it for this website and click Continue.

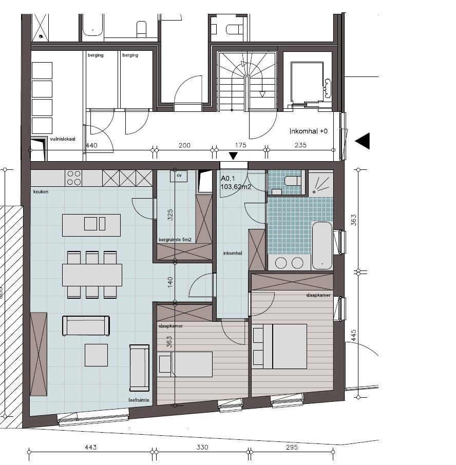
Torhout Rijselstraat 73 - 8820



Beschrijving


NIeuwbouw appartemement op het gelijkvloers, op wandelafstand van het centrum van Torhout. Dit appartement heeft een oppervlakte van maar liefst 103 m² en maakt deel uit van een kleinschalige residentie 'Nendaz'. Indeling: inkom, gastentoilet, badkamer met bad, douche en dubbele lavabo, twee slaapkamers, leefruimte met ingericht open keuken, bergruimte (5 m²). Kwaliteitsvolle afwerking, energiezuinig, muren in geluidsisolerende, duurzame silikaat-blokken. Oplevering medio 2018. Rustig wonen, gelijkvloers, vlakbij het centrum met winkels, restaurants en dichtbij uitvalswegen naar Brugge, Roeselare,... Bovengrondse parkeergelegenheid, fietsenberging, gemeenschappelijke berging. Verkoopprijs: 215 000 euro, exclusief aankoopkosten en carport. Website aanbieder



Prijs en beschikbaarheid


Een vermelding op deze site betekent niet dat deze woning nu te koop is.


  Kenmerken
  © Huistekoopin.be
Soort huis:Appartement Gebouwd in:
Aantalgevels: 2 Gevelbreedte:
Woonoppervlakte:103 Perceeloppervlakte:
WC: 1 Aantal badkamers:
Garage: Zolder:
Terras: Aantalwoonlagen:
Tuin: Locatietuin:
Keuken:Eetkamer:
Living:

Meer informatie over dit referentieobject, buurt en andere huizen



Provincie Antwerpen | Oost-Vlaanderen | Provincie Brussel | Alle koophuizen in Nederland